Immobiliare Santa Valeria

SEREGNO .SANTA VALERIA . ULTIMO PIANO .

Home > Ricerca > Dettaglio immobile
Rif: VAS118

SEREGNO

MONZA BRIANZA - zona Santa Valeria
Condividi Linkedin Whatsapp Stampa
Stampa

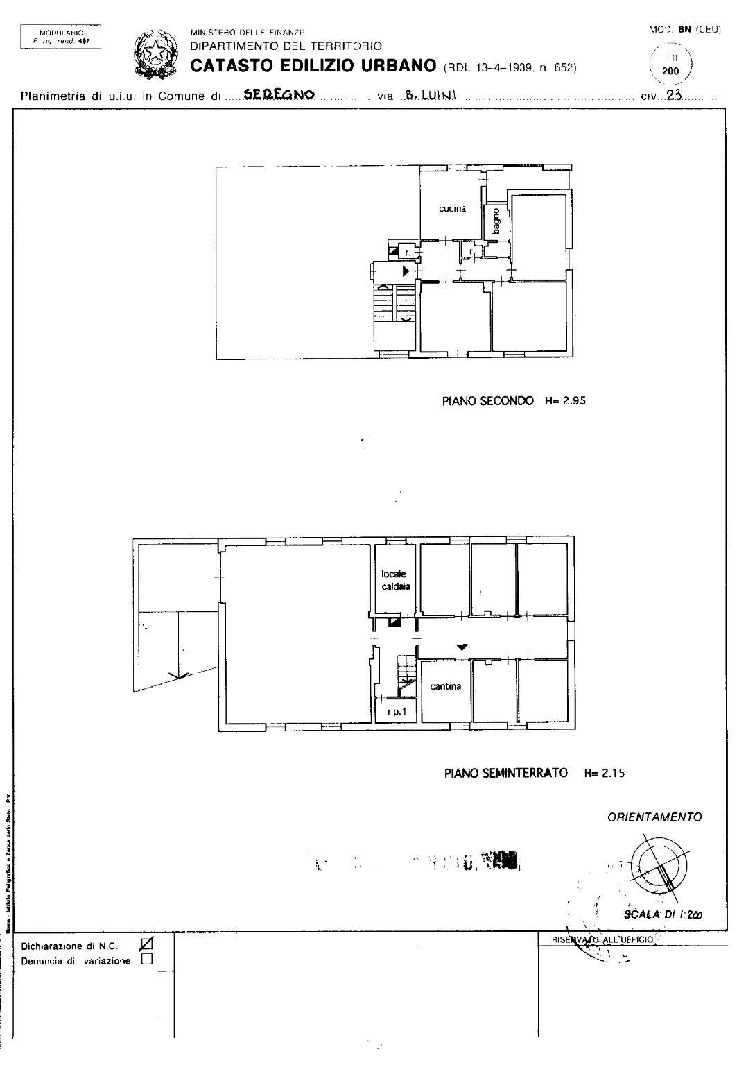
Nel quartiere piu' rinomato di Seregno, a due passi dal centro, dalla stazione e di tutti i servizi, proponiamo ampio tre locali. All'interno di un contesto di sole sei unità abitative, sottoposto nel 2013 ad un totale intervento di restyling di tetto, facciata e infissi, l'immobile occupa il secondo ed ultimo piano. Invaso dalla luce, mediante la tripla esposizione, si compone come segue: ingresso, soggiorno, ampia cucina abitabile con accesso al balcone che resta comodo e pienamente sfruttabile, il disimpegno accompagna verso la zona notte dove troviamo le due camere matrimoniali, un comodo bagno recentemente rivisitato ed infine due comodi quanto introvabili ripostigli. Completano la soluzione infissi il alluminio doppio vetro, ampio vano di cantina al piano interrato. Libero subito. Le presenti informazioni non costituiscono elemento contrattuale. Seguici sulla nostra pagina Facebook: http://www.facebook.com/immobiliaresantavaleria/ Contattaci anche via Whatsapp al 373/7533038

Consistenze

Descrizione Superficie Sup. comm.
Principali
Immobile - 2° piano 92 Mq 92 Mqc
Totale 92 Mqc

Richiedi maggiori informazioni

Autorizzazione al trattamento dei dati personali+
Dichiaro di aver letto l'informativa sulla privacy ed accetto le condizioni d'utilizzo del servizio.
Riempi il campo con il codice riportato nell'immagine*
Codice Captcha
Chiamaci Contattaci