Rif: VVCAB329
CABIATE
COMO
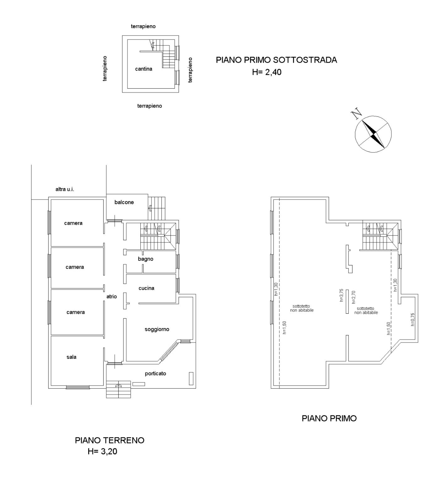
" OGNI CASA HA LA SUA BELLEZZA , MA NON TUTTI LA VEDONO " Oggetto di ammirazione incondizionata, per chi è alla ricerca del superlativo in termini di indipendenza. Immersa nella riservatezza che la zona residenziale offre, Immobiliare Santa Valeria propone in vendita una suggestiva dimora singola di eccezionale rarezza. L'audace concezione degli spazi interni, con matrice anni '60 rivisitata, renderanno l'alloggio avanguardista. La concezione "plurilivello" prevede un'adeguata suddivisione degli spazi interni, rendendoli funzionali e largamente vivibili. L'ingresso è cinto da una piacevole area esterna: il patio, abitabile, funge da cerniera indoor-outdoor. L'interno vero e proprio si articola con ambienti distribuiti in parallelo: soggiorno con accesso diretto alla cucina abitabile, quattro camere che si susseguono ed un servizio. La scala interna accompagna al piano superiore, mansardato: un vano eclettico che concede diverse possibilità di utilizzo e la concreta opportunità, da progetto, di poter realizzare un ulteriore spazio outdoor. Infine, agli antipodi rispetto al corpo centrale, un utilissimo locale deposito con adiacente box in larghezza. "Essere felici a casa è il risultato di ogni ambizione." Le presenti informazioni non costituiscono elemento contrattuale. Visita il nostro sito: www.immobiliaresantavaleria.it WhatsApp al numero: 373/7533038
Consistenze
| Descrizione | Superficie | Sup. comm. |
|---|---|---|
| Principali | ||
| Immobile - piano terra | 160 Mq | 160 Mqc |
| Mansarda - 1° piano | 117 Mq | 117 Mqc |
| Box/Garage - piano terra | 27 Mq | 14 Mqc |
| Totale | 291 Mqc | |
