Rif: VAG135
GIUSSANO
MONZA BRIANZA
Giussano : dove tranquillità e silenzio regnano, tenendo sempre a portata di mano comodità e servizi, immobiliare Santa Valeria propone elegante bilocale.
Situato all'interno di un piccolo contesto edificato nel 2005 e rifinito con mattone a vista, l'alloggio occupa il piano primo.
Un restyling interno nel fine 2022 ha donato una finitura essenziale ed elegante, rendendolo affascinante e contemporaneo, la posa integrale di un meraviglioso parquet, ha reso facile questo risultato;
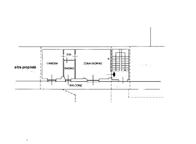
i 63 mq c.a. a disposizione sono stati ottimamente distribuiti, facendo della semplicità e fruibilità il punto cardine di questo immobile.
Ingresso, soggiorno con cucina lasciata a vista, disimpegno con zona lavanderia e armadiatura, bagno con doccia walk-in ed ampia camera matrimoniale.
Una generosa balconata si estende su tutto l'immobile e l'ottimale esposizione ad ovest dona un'ottima luminosità.
Completa la soluzione un posto auto di proprietà all'interno del contesto.
Libero subito.
Le presenti informazioni non costituiscono elemento contrattuale.
Visita il nostro sito: www.immobiliaresantavaleria.it
Contattaci anche tramite Whatsapp al numero: 373/7533038
Situato all'interno di un piccolo contesto edificato nel 2005 e rifinito con mattone a vista, l'alloggio occupa il piano primo.
Un restyling interno nel fine 2022 ha donato una finitura essenziale ed elegante, rendendolo affascinante e contemporaneo, la posa integrale di un meraviglioso parquet, ha reso facile questo risultato;
i 63 mq c.a. a disposizione sono stati ottimamente distribuiti, facendo della semplicità e fruibilità il punto cardine di questo immobile.
Ingresso, soggiorno con cucina lasciata a vista, disimpegno con zona lavanderia e armadiatura, bagno con doccia walk-in ed ampia camera matrimoniale.
Una generosa balconata si estende su tutto l'immobile e l'ottimale esposizione ad ovest dona un'ottima luminosità.
Completa la soluzione un posto auto di proprietà all'interno del contesto.
Libero subito.
Le presenti informazioni non costituiscono elemento contrattuale.
Visita il nostro sito: www.immobiliaresantavaleria.it
Contattaci anche tramite Whatsapp al numero: 373/7533038
Consistenze
| Descrizione | Superficie | Sup. comm. |
|---|---|---|
| Principali | ||
| Immobile - 1° piano | 63 Mq | 63 Mqc |
| Totale | 63 Mqc | |
